Сегодня в департаменте дорожной инфраструктуры и транспорта администрации города Тюмени состоялось итоговое совещание с перевозчиками по маршрутам регулярных перевозок.На нем были подняты следующие вопросы:- соблюдение установленного...
Официально
Директор департамента гражданской защиты и пожарной безопасности Тюменской области подвел итоги года в отрасли.Завершен основной этап формирования областной противопожарной службы. Сегодня в ней работают 921 человек — это 115...
С Новым годом, «ленинцы»!В преддверии праздника сотрудники комиссия по делам несовершеннолетних и защите их прав при управе Ленинского административного округа Тюмени посетили семьи, имеющие на иждивении малолетних детей....
Сегодня мы поделимся с вами интересными фактами о главном символе праздника во всём мире!Искусственные ели были изобретены в Германии в XIX веке, на тот момент их можно было приобрести только там. А теперь искусственные елки украшают городские улицы и...
Вчера, 28 декабря, на пересечении улиц Харьковской и Одесской гости и жители района отмечали наступление Нового года.Снежная Королева и Конёк-Горбунок должны были выполнить поручение Деда Мороза, тем самым приблизив его визит и подарим всем новогоднее...
Мошенники все чаще заманивают людей в опасную ловушку под названием «дропперство». Они предлагают легкий заработок за, казалось бы, простую услугу: оформить банковскую карту и дать им ею «попользоваться» или же предлагают обычную работу курьером. На...
В Ялуторовском округе продолжается профилактическая работа на водоемах Подробнее узнай по ссылке. @MCHSTYUMEN72 Подписывайся на МЧС России в// МЧС Тюменской области
Мероприятие для учеников 10-х классов тюменских школ, проходивших военно-патриотические сборы на базе Регионального центра допризывной подготовки и патриотического воспитания «Аванпост», проводилось в рамках...
График работы Областной больницы №3 в праздничные дни с 31 декабря 2025 года по 11 января 2026 года!
ВЗРОСЛАЯ ПОЛИКЛИНИКА РАБОТАЕТ ЕЖЕДНЕВНО с 31.12.2025 по 11.01.2026Неотложная медицинская помощь:• приём в поликлинике — 08:00–20:00• вызовы неотложной помощи на дом — 08:00–20:00ПЛАНОВЫЙ ПРИЁМ ВРАЧЕЙ И МЕДИЦИНСКИХ СЛУЖБ31 декабря...
В преддверии Нового года волшебство становится реальностью. Директор департамента Елена Михайловна Ерёмина выступила в роли доброй новогодней феи для нескольких детей, приняв участие в благотворительной акции «Ёлка желаний».Первой счастливицей стала...
Руководитель управы Ленинского административного округа Илья Махарашвили и председатель органа территориального общественного самоуправления «Тура» Альбина Селезнева поздравили жителей района «Тура» с наступающим Новым годом. Праздник прошел в новом...
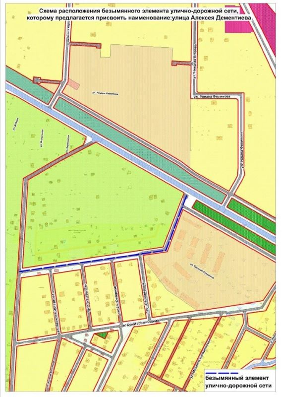
Комиссия по топонимике поддержала предложение общественной организации «Ветераны пограничники Тюменской области» о присвоении улице имени Дементиева Алексея Валериевича – участника специальной военной операции, награждённого орденом Мужества...
Хочу отметить, что в данном районе реализуется проект по строительству современного двухэтажного здания для детского морского центра «Алый парус». Инвестором выступает строительная компания «Паритет», которая уже провела предварительную работу и...
Серьёзный выбор!Его сделала восьмилетняя Ксения, поделившись на сайте благотворительной акции «Ёлка желаний» своей заветной мечтой.Выбор её довольно необычен для ребёнка и вызывает уважение! Не каждый взрослый готов отринуть лень и заняться спортом, а...
«Мы не просто играем – мы продолжаем великую традицию»Этот девиз крытого ледового комплекса «Водник», который сегодня торжественно открыл губернатор Тюменской области Александр Викторович Моор, как нельзя лучше отражает связь поколений, которой мы...
Семен Тегенцев: 2025 год стал стартовым для крупнейших инфраструктурных проектов в Тюменской области
Директор регионального департамента ЖКХ подвел итоги года и рассказал о ключевых событиях в отрасли.В Сладковском округе началось строительство крупных водоочистных сооружений. Они обеспечат жителей чистой питьевой водой.В Юргинском и Упоровском...
Тюменцы сообщают о проблемах с оплатой проезда через QR-коды и NFC-метки. Напоминаем, что стабильная работа этих способов оплаты зависит от внешних факторов, не подконтрольных АО «ТТС» и перевозчику, таких как устойчивое интернет-соединение на...
Многие меры предоставляются СФР в рамках нацпроекта «Семья» и других программ. Справка о выплатах может понадобиться в разных ситуациях:для оформления пособий;для подтверждения доходов семьи;для назначения социальной стипендии студентам;для проверки...






































